Georgetown Office Warehouse Floor Plans - Phase 3
Explore the available floor plans for Workspace USA Georgetown Phase 3, featuring a range of building and suite configurations designed for business owners who want flexibility and long-term ownership.
Phase 3 includes three new buildings with multiple suite sizes, giving you the ability to start small or scale into a larger footprint over time. Whether you need a single unit or an entire building, these layouts are designed to adapt to your operation.

Multiple Building Sizes & Configurations
Georgetown Phase 3 offers a mix of full-building and individual suite options:
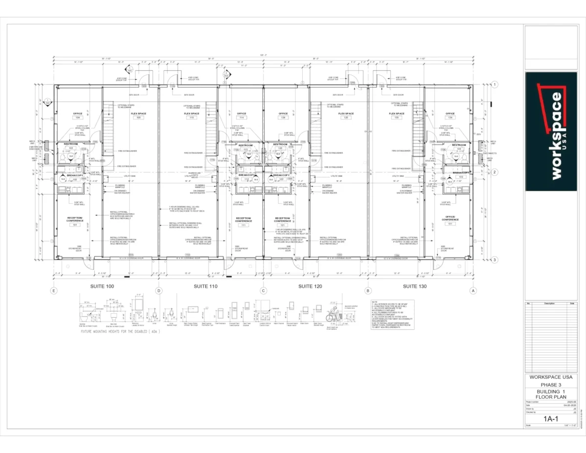
- Building 1: Up to 6,000 SF (120’ x 50’)
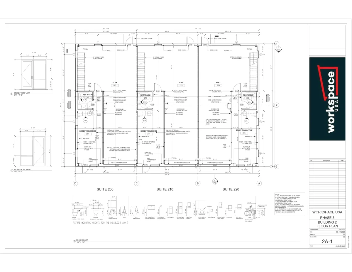
- Building 2: ~3,250–3,750 SF configurations
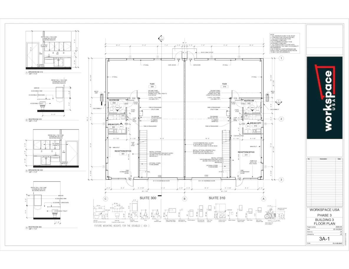
- Building 3: ~3,250 SF options
For smaller users, individual suites are available in:
- 1,250 SF
- 1,500 SF
- 1,625 SF
Units can also be combined into 2,500 SF, 3,000 SF, 4,500 SF, or full-building layouts, allowing your space to grow with your business.
FLOOR PLANS
Request Floor Plans & Availability – Georgetown Phase 3
Have questions about specific building layouts or available units in Goergetown Phase 3? Our team can walk you through each floor plan, including suite configurations, square footage options, and customization opportunities.
Phase 3 features multiple buildings and flexible layouts ranging from approximately 1,250 SF suites to full buildings over 5,000 SF, giving business owners the ability to choose a space that fits their exact needs.
Whether you’re comparing layouts, planning your build-out, or looking to secure a unit early, we’ll help you understand your options and next steps.


